户外道路监控如何报价?如何接地?一文了解清楚
一、道路监控有哪些内容
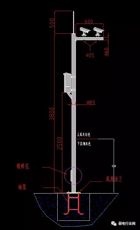
可以很清楚的看到,道路监控有立杆和横臂,正是因为这立杆和横臂加大了它的施工难道,那么具体有哪些内容呢?我们可以通过几个示意图来了解。 可以看得出,道路监控基础的建设是重点的,尤其是对有横臂的立杆考虑,基础的建设更加重要,如下图:基础开挖与立杆横臂的参考表。
可以很清楚的看到,道路监控有立杆和横臂,正是因为这立杆和横臂加大了它的施工难道,那么具体有哪些内容呢?我们可以通过几个示意图来了解。 可以看得出,道路监控基础的建设是重点的,尤其是对有横臂的立杆考虑,基础的建设更加重要,如下图:基础开挖与立杆横臂的参考表。
二、道路监控与室内监控的区别
通常室内监控我们我们只需要三部分就行了,前端设备、后端设备、监控线缆。
预算设备清单举例如下:
可以说室内监控的清单比较固定,大部分项目都差不多,那么室外监控有什么区别呢?
而室外监控需要考虑的因素比较多,不止前端设备、后端设备、监控线缆这三部分,还有会立杆基础建设及防水等等,所以在室内监控设备的基础,还会有一些其它的设备与施工,如下图参考:
可以从上图中看得出来,道路监控的复杂性要比普通的监控高的多,基础建设立杆很耗工时。

声明:本站所有文章资源内容,如无特殊说明或标注,有些来自网络资源。如若本站内容侵犯了原著者的合法权益,可联系本站删除。









