接线 | 门禁主机通过485及韦根接读卡器指导
模式一 门禁主机与读卡器485接线
1 读卡器模式选择485,先进行地址拨码
1)读卡器的前四位为地址码,地址位是二进制拨码,遵循原则,地址1对应门1进,地址2对应门1出,以此类推,最多到地址8;
2) 读卡器采用485接线时,后面四位无需拨码,都是OFF的状态;
Tips:拨码开关5为预留,指的是-M的读卡器,如果是-C的CPU卡读卡器,5拨ON是读卡序列号,OFF是读卡内容
读卡器拨码开关如下图所示:
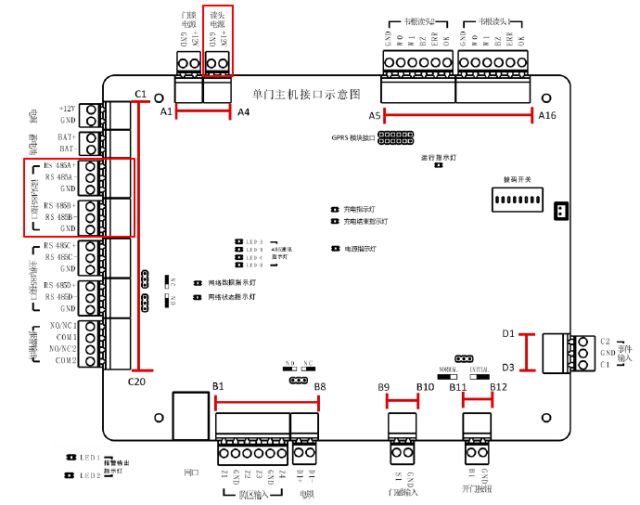
2 连接DS-K2602和485读卡器
1) 如果是单独的一块裸板,读卡器的红(+12V)和黑(GND)接读卡器的读头电源,黄(485+)接左RS485A+,蓝(485-)接左侧RS485A-
2) 如果26XX控制器在机箱里,读卡器在接线端子处相连,如果有多个读卡器,采用手拉手方式接在这四个端子上
3) 观察读卡器指示灯状态
如BZ/ERR/OK都正常连接后,指示灯状态为蓝色闪烁,如为红色为通讯故障
排查两点:
① 485的接线是否正确
② 地址的拨码是否正确,修改拨码后需重启
带机箱的控制器,有两排接线端子↓↓↓

模式二 读卡器采用韦根模式接线
1 读卡器的前四位为地址拨码,韦根模式无需进行地址拨码
1)读卡器采用韦根接线时,第6位拨为ON,第7位除非明确要求用韦根26通讯,否则不用拨。(w26指读卡器卡号是8位数时,w34指读卡器卡号是10位数时)
2)拨码开关同模式一图片
Tips:拨码开关5为预留,指的是-M的读卡器,如果是-C的CPU卡读卡器,5拨ON是读卡序列号,OFF是读卡内容
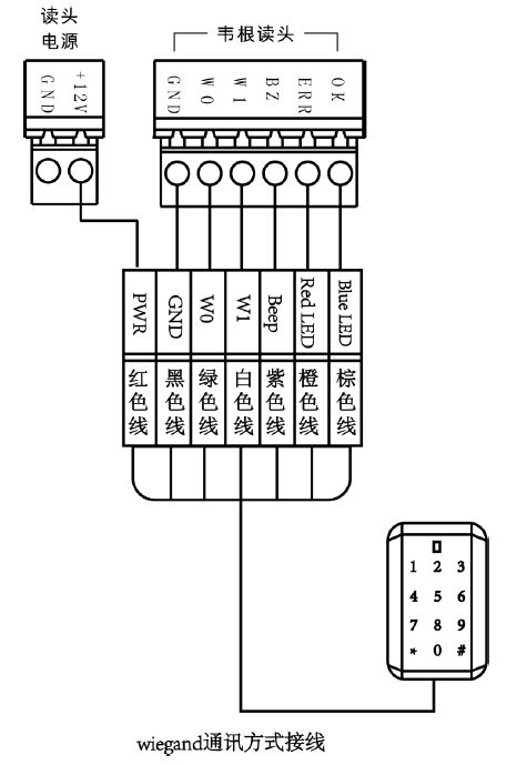
2 连接DS-K2602和韦根读卡器
1)机箱的接线端子有2个韦根接口,板子的上方有四个韦根接口(2602是双门的主机,READER 1对应门1进,READER2对应门1出,以此类推;


Tips:K2602是双门主机,读卡器可只接在图②主板上,外部机箱韦根端子(即图①)可不接。
2) 读卡器的红(+12V)和黑(GND)接读卡器的读头电源处,绿(W0)接端子W0,白色(W1)接端子W1处。此四根线是必连的,如果要控制韦根的LED和蜂鸣,必须把BZ/ERR/OK都接上去。

3)观察读卡器指示灯状态
如BZ/ERR/OK都正常连接后,指示灯状态为蓝色闪烁,如为红色为通讯故障
排查两点:
① 维根接线是否正确
② 地址的拨码是否正确,修改拨码后需重启
PS:485及维根接线线材建议选用RVVP1.0的规格,不能用网线替代哦~
上面的图文指导是不是没看够呢,我们还有视频操作指导:
声明:本站所有文章资源内容,如无特殊说明或标注,有些来自网络资源。如若本站内容侵犯了原著者的合法权益,可联系本站删除。
